Projekti | 4 listopada, 2025
Umjetnica je kupila kuću; modernističko remek-djelo Oscara Niemeyera. I odlučila je nadograditi
Projekt Itaúna House u Rio de Janeiru popisuje arhitektonski ured Siqueira+Azul
Autor: Haus
Projekti | 4 listopada, 2025
Projekt Itaúna House u Rio de Janeiru popisuje arhitektonski ured Siqueira+Azul
Autor: Haus
Čuveni arhitekt kuću je 1969. projektirao za svoju šogoricu. Pola stoljeća kasnije započelo je novo poglavlje u povijesti vrijedne rezidencije
Brazilski arhitektonski ured Siqueira+Azul potpisuje projekt Itaúna House; proširenje rezidencije iz 1969. godine u Rio de Janeiru, vrijedne Case Baldo koju je izvorno projektirao čuveni Oscar Niemeyer.
Niemeyer je kuću realizirao za svoju šogoricu Carmen Baldo i danas se je dragocjen primjer brazilskog modernizma i važan kulturni reper Rio de Janeira. Prije svega, odražava Niemeyerovu filozofiju stanovanja u harmoniji s pejzažem te prikazuje pristup projektiranju jednog je od najvažnijih predstavnika moderne arhitekture: jednostavan tlocrt, čiste linije i naglašena veza između unutarnjeg prostora i prirodnog okruženja.
Objekt je 2011. od potomaka Carmen Baldo kupila renomirana vizualna umjetnica Adriana Varejão, čime je započelo novo poglavlje u povijesti legendarne kuće. S obzirom na ograničenu površinu parcele i urbanizirani kontekst, Varejão je otkupila susjednu parcelu, čime se otvorila mogućnost širenja, inovacije i stvaranja posve novog krajolika. Pritom, formiranje vrtne veze između izvorne kuće i njezine okoline bilo je ključno.


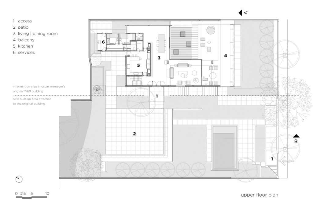
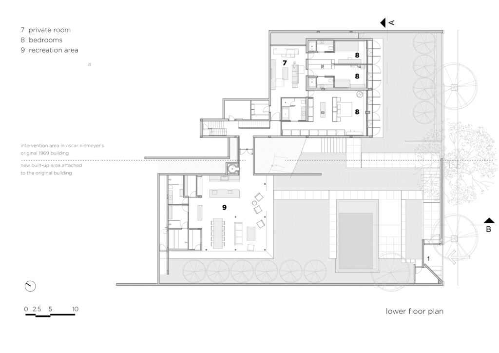
Projekt je započeo intervencijom koja zadržava i restaurira originalni objekt, a istovremeno ga nadopunjuje novim volumenima, komunikacijama i prostorima za boravak. Ključno polazište je bilo očuvanje identiteta Niemeyerove forme, dok se nova arhitektura razvija kao nenametljivi kontrapunkt – nadopunjujući, a ne dominirajući nad povijesnom građevinom.



Na novoformiranoj parceli oblikuje se vrt izraženih geometrijskih linija, koji postaje središnji element za povezivanje svih dijelova kompleksa. Nova dogradnja podrazumijeva izgradnju aneksa za razonodu i opuštanje, koji lebdi između vrta i bazena te koristi podignutu betonsku ploču kao glavnu arhitektonsku gestu. Ova ploha djeluje kao platforma – istovremeno element koji odjeljuje i povezuje, omogućujući fluidnost između zatvorenog i otvorenog prostora.

Kompleks se sastoji od tri jasno artikulirane građevine – originalne Niemeyerove kuće, novog aneksa i servisnog objekta – koje su međusobno povezane sustavom natkrivenih i otvorenih hodnika, prolaza te stubišta. Arhitektonski tim, predvođen Lijom Siqueirom, osmislio ih je kao sekvence prostora koje omogućuju stalnu vizualnu i funkcionalnu povezanost s okolišem, pri čemu su hodnici i mostovi više od pukih komunikacijskih elemenata; oni su prostorni doživljaj sam za sebe.

Fasade postojećih i novih volumena definirane su velikim zakretnim panelima postavljenim na konstrukciju od željezne mreže, što omogućava fleksibilno korištenje prostora, ali i igru svjetla, sjene te vizualnih veza s vrtom. Unutarnje zone prostiru se prema van kroz velike staklene stijenke i kontinuirane klupe uz rubove ploča, čime se postiže vizualna i fizička komunikacija eksterijera i interijera.


Jedan od upečatljivih detalja jest okulus, kružni otvor na gornjoj etaži koji služi kao izvor svjetlosti, ali i kao vizura prema dvorištu. Vertikalni promet riješen je spiralnim stubištem koje vodi do tornja s prostranim kliznim staklenim stijenama, dodatno otvarajući pogled prema krajoliku Rija.


U aneksu i vanjskim prostorima dominiraju prirodni materijali: kamen, beton i drvo, čije su teksture i tonovi pažljivo uklopljeni s bujnim zelenilom vrta. Diferencijacija površina, nivelacija i kontrasti korištenih materijala definiraju granice između prostora, a istovremeno stvaraju osjećaj kontinuiteta i prožete harmonije.








Ljudi
Upoznajte fantastičnu Karlu, jedinu učenicu Stolarije u svojoj generaciji
Ljudi
U zelenom utočištu naše omiljene TV vrtlarice: ‘Ovdje učim kako stati i upijati’
Projekti
Nadogradnja stare zgrade: što kad izgleda ovako?
Projekti
Moj najdraži projekt: ‘Adaptacija starog stana u Splitu u kojem smo za prijateljicu dizajnirale namještaj’
Materijal
Startup izumio drvo jače od čelika. Upravo kreću u masovnu proizvodnju
TAGOVI: #casa baldo, #Itaúna House, #kuća, #moderna, #Oscar Niemeyer, #projekt, #Rio de Janeiro, #Siqueira+Azul
POVEZANI ČLANCI