Projekti | 21 listopada, 2025
Zašto je stambeni kompleks za starije dobio najugledniju britansku nagradu za arhitekturu
Appleby Blue Almshouse, projekt ureda Witherford Watson Mann Architects, pobjednik je Stirlingove nagrade
Autor: Haus
Projekti | 21 listopada, 2025
Appleby Blue Almshouse, projekt ureda Witherford Watson Mann Architects, pobjednik je Stirlingove nagrade
Autor: Haus
‘Nastao u sjeni dviju kriza – akutnog nedostatka stambenog prostora i rastuće epidemije usamljenosti među starijim osobama – Appleby Blue nudi optimističan i maštovit odgovor, u kojem se stanovnici i okolna zajednica povezuju putem transformativne snage arhitekture’
Novi stambeni kompleks za starije osobe Appleby Blue Almshouse, u Londonu, pobjednik je Stirlingove nagrade za 2025. godinu – najuglednijeg britanskog arhitektonskog priznanja koje dodjeljuje Royal Institute of British Architects (RIBA) za najbolje novo arhitektonsko ostvarenje u Ujedinjenom Kraljevstvu.
RIBA Stirling Prize svake se godine dodjeljuje projektu koji, prema mišljenju stručnog žirija, najviše doprinosi razvoju arhitekture kroz inovaciju, društvenu vrijednost i estetsku izvrsnost. Ova nagrada prepoznaje arhitekturu koja oblikuje društvo i reagira na suvremene izazove, a upravo to, prema mišljenju žiriija, čini Appleby Blue Almshouse, rad londonskog studija Witherford Watson Mann Architects.



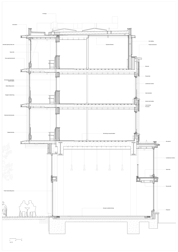
Smješten u londonskom Bermondseyju, uz prometnu ulicu, Appleby Blue zamjenjuje nekadašnji dom za njegu i reinterpretira stoljetni model „almshousea” – humanitarnog stanovanja – u suvremenom kontekstu. Kompleks se sastoji od 59 prozračnih, svjetlih stanova organiziranih oko središnjeg vrtnog dvorišta, čime se zajednički prostor postavlja u središte projekta.
Za razliku od tradicionalnih domova, ovdje se stanarima nudi samostalno stanovanje u vlastitim stanovima uz brojne zajedničke sadržaje i podršku zajednice. Cilj je poticanje neovisnosti i socijalne povezanosti, a ne institucionalna skrb.

Zgrada je zamišljena kao “tiho radikalna” reinterpretacija stanovanja u starijoj dobi. Cilj ovakve arhitekture je potaknuti osjećaj zajedništva i smanjiti društvenu izolaciju među osobama starijima od 65 godina, odgovarajući pritom na dva aktualna društvena problema – nedostatak pristupačnog stanovanja i porast usamljenosti u starijoj populaciji.

Na razini ulice, prozori od poda do stropa i vizure prema obližnjoj autobusnoj stanici stvaraju snažnu povezanost između stanara i okolnog susjedstva. Javni prostori i programi te s drvom obloženi zajednički prostori i kuhinja, dodatno učvršćuju ulogu zgrade kao središta koje povezuje i stanare i širu zajednicu.

Projekt je razvijen u uskoj suradnji između arhitekata studija Witherford Watson Mann i humanitarne organizacije United St Saviour’s Charity, a u svaku je fazu, tvrde arhitekti, ugrađena ideja dobrobiti, skrbi i dostojanstva. Appleby Blue Almshouse predstavlja novi model stanovanja u zreloj životnoj dobi, u kojem arhitektura aktivno potiče povezanost, neovisnost i zajednički život.

Uz betonski konstrukt koji omogućuje pasivno hlađenje i optimalnu temperaturu, zgrada koristi dnevno svjetlo kroz velike prozore i zimske vrtove, omogućujući prirodnu ventilaciju i boravak na svježem zraku tijekom cijele godine. Sustavi pametne rasvjete i obnovljivi izvori energije, poput fotonaponskih panela, dodatno smanjuju potrošnju energije.

U građevnom smislu, riječ je o sklopu koji uvažava urbani kontekst – kombinacija peterokatnog volumena prema bučnoj prometnici i nižeg prema jugu omogućuje optimalno osvjetljenje i zaštitu vrta od buke. Topli materijali – opeka i drvo – pridonose osjećaju doma, dok prostorna fleksibilnost omogućuje da se zajednički dijelovi koriste i za aktivnosti lokalne zajednice.

Projektom Appleby Blue Almshouse želi se promicati nova paradigmu stanovanja u zreloj dobi: umjesto izolacije i periferne lokacije, pruža model urbanog, aktivnog starenja. Time arhitektura postaje instrument društvene povezanosti i dostojanstva. Ujedno je i dokaz da kvalitetan dizajn socijalnog stanovanja može biti estetski dojmljiv, održiv i ekonomski dostupan.



Žiri RIBA-e, kojim je 2025. predsjedala Ingrid Schroder, direktorica Architectural Association School of Architecture, istaknuo je da nagrađeni projekt „na najnježniji i najradikalniji način promišlja zajednički život starijih osoba u gradu” te da „stvara osjećaj mjesta kojem se pripada”. Posebno su pohvaljeni održivost, društvena uključenost, arhitektonska funkcionalnost i emocionalna kvaliteta prostora.
Nagrada također reflektira aktualne vrijednosti arhitekture: brigu za okoliš, novo promišljanje tipologija i dizajn koji aktivno jača zajednicu.“Ovaj projekt je snažan poziv na novi oblik stanovanja u prijelomnom trenutku. Nastao u sjeni dviju kriza – akutnog nedostatka stambenog prostora i rastuće epidemije usamljenosti među starijim osobama – Appleby Blue nudi optimističan i maštovit odgovor, u kojem se stanovnici i okolna zajednica povezuju putem transformativne snage arhitekture”, poručila je Schroder.









Fotografije: Philip Vile i Philipp Ebeling
Ljudi
Upoznajte fantastičnu Karlu, jedinu učenicu Stolarije u svojoj generaciji
Ljudi
U zelenom utočištu naše omiljene TV vrtlarice: ‘Ovdje učim kako stati i upijati’
Projekti
Nadogradnja stare zgrade: što kad izgleda ovako?
Projekti
Moj najdraži projekt: ‘Adaptacija starog stana u Splitu u kojem smo za prijateljicu dizajnirale namještaj’
Materijal
Startup izumio drvo jače od čelika. Upravo kreću u masovnu proizvodnju
POVEZANI ČLANCI